Loading...

De Sphinx

komt weer tot leven


Interview: Olivier Graeven - Roos & Braaksma architectenbureau

De Eiffel, het iconische fabriekscomplex van sanitairfabrikant Koninklijke Sphinx in Maastricht, wordt getransformeerd tot een multifunctioneel gebouw voor onder andere wonen en werken. Een bouwwerk met een authentieke uitstraling en modern comfort, mede dankzij Metaglas.

Het voormalige industriële Sphinxkwartier en de wijk Belvédère in het stadscentrum van Maastricht worden de komende jaren omgevormd tot een
nieuwe, bruisende stadswijk. Onderdeel van deze metamorfose is de transformatie van Het Eiffelgebouw, een ensemble van drie geschakelde
gebouwen dat tussen 1928 en 1941 is gebouwd en tot 2006 deel uitmaakte van sanitairfabriek Koninklijk Sphinx. Inmiddels wordt dit imposante Rijksmonument getransformeerd tot een hotel, loftwoningen, kantoorruimten en andere publiekstoegankelijke functies.

 

Buitengevelisolatie

Om ‘De Eiffel’ te herbestemmen moet de vervallen gevel van het tochtige fabrieksgebouw grondig worden gerenoveerd. Braaksma & Roos Architectenbureau koos ervoor de buitenkant te isoleren en de binnenkant ongemoeid te laten. ‘We vonden het belangrijker om karakteristieke elementen binnen intact te houden, zoals de beton-staalconstructie, stempels op de kolommen, nummers van productieafdelingen en oude vloeren en plafonds. Daarom hebben we gekozen om de buitenzijde te isoleren’, licht architect Olivier Graeven de ontwerpkeuze toe. De buitengevel is geïsoleerd met 15 centimeter EPS en voorzien van wit stucwerk waarin de oorspronkelijke gevelbanden en metselwerk zijn aangebracht. Hiervoor is een 3d-scan gemaakt van het reliëf van de oude gevel. Graeven: ‘Op deze manier hebben we een herinterpretatie gemaakt van het oude exterieur; het monumentale, industriële silhouet van het gebouw is behouden.’

Achterzetramen

De Eiffel is 180 meter lang, 18 meter breed, 7 verdiepingen hoog en telt circa 700 ramen. Deze waren oorspronkelijk van gietijzer en zijn opgebouwd uit meerdere ruiten. Vanaf de jaren zestig zijn de ramen merendeels vervangen door stalen ramen.

 

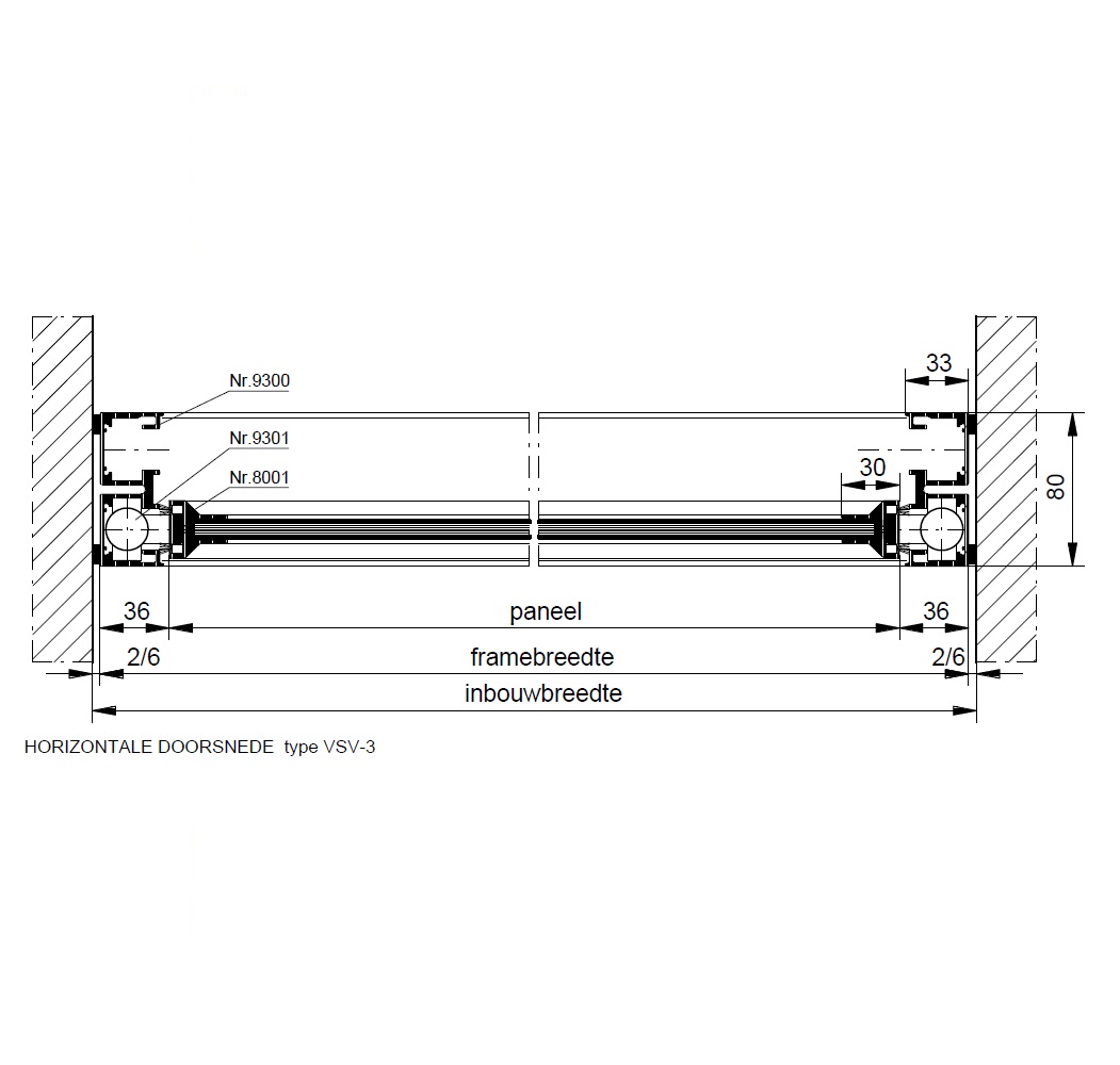
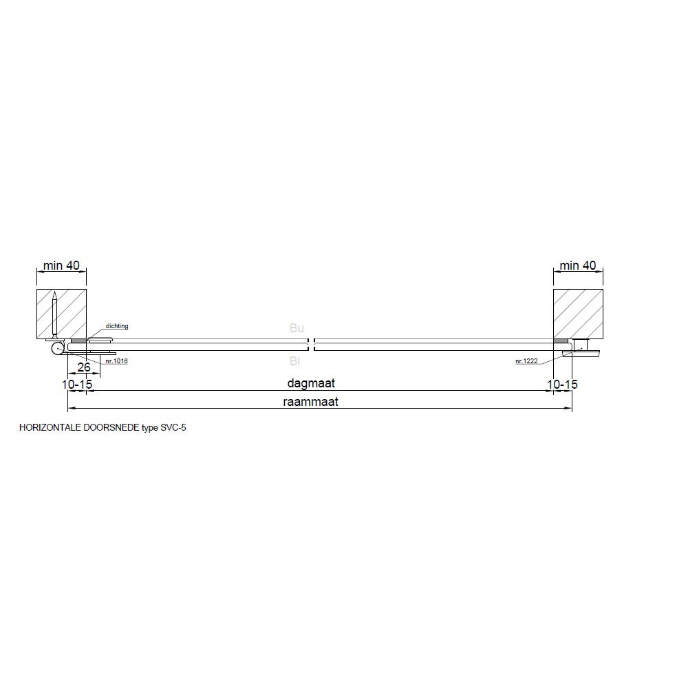
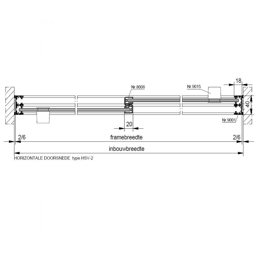
Een kleine tachtig gietijzeren ramen zijn bewaard gebleven en worden gerestaureerd. ‘De ruiten worden vervangen door monumentaal glas. De isolatie hebben we opgelost met MetaPlus achterzetramen’, legt Graeven uit. ‘Ze zijn aan de binnenkant zichtbaar als een nieuw element en ogen ook industrieel, net als gietijzer.’

Sensoren

Veertig van de tachtig gerestaureerde ramen bevinden zich op twee verdiepingen van The Student Hotel, een van de toekomstige exploitanten van De Eiffel. ‘De achterzetramen zijn gekoppeld aan de radiatoren. In de ramen zitten sensoren die het openzetten van het raam waarnemen. Als het raam open wordt gezet terwijl de radiator aan staat, dan schakelt het raam de verwarming in de hotelkamer automatisch uit. Zo helpen ze de energiekosten voor de exploitant te beheersen.’ Metaglas leverde alle MetaPlus achterzetramen op maat en heeft volgens Graeven veel energie gestoken in de montage. ‘Vrijwel alle vensters waren in de loop der jaren krom en schuin getrokken, wat Metaglas hoofdbrekens heeft bezorgd ten aanzien van de maatvoering van de ramen. Ze hebben dit opgelost door in één maat te produceren die met behulp van passtukken in elk venster kon worden gesteld. Een zeer intensieve klus maar het resultaat is er dan ook naar.’

Projectinformatie

Locatie
Maastricht
Opdrachtgever
Belvédère WOM
Architecten bureau
Braaksma & Roos architectenbureau
Ontwerp
Olivier Graeven
Bouwbedrijf
Bam Bouw & Techniek
Jaar van realisatie
2017
Fotografie
Jonathan Vos
Deel dit project
Laat een bericht achter
Kom in contact!