Loading...
Methermo Classic Naar buiten draaiende ramen

MCD

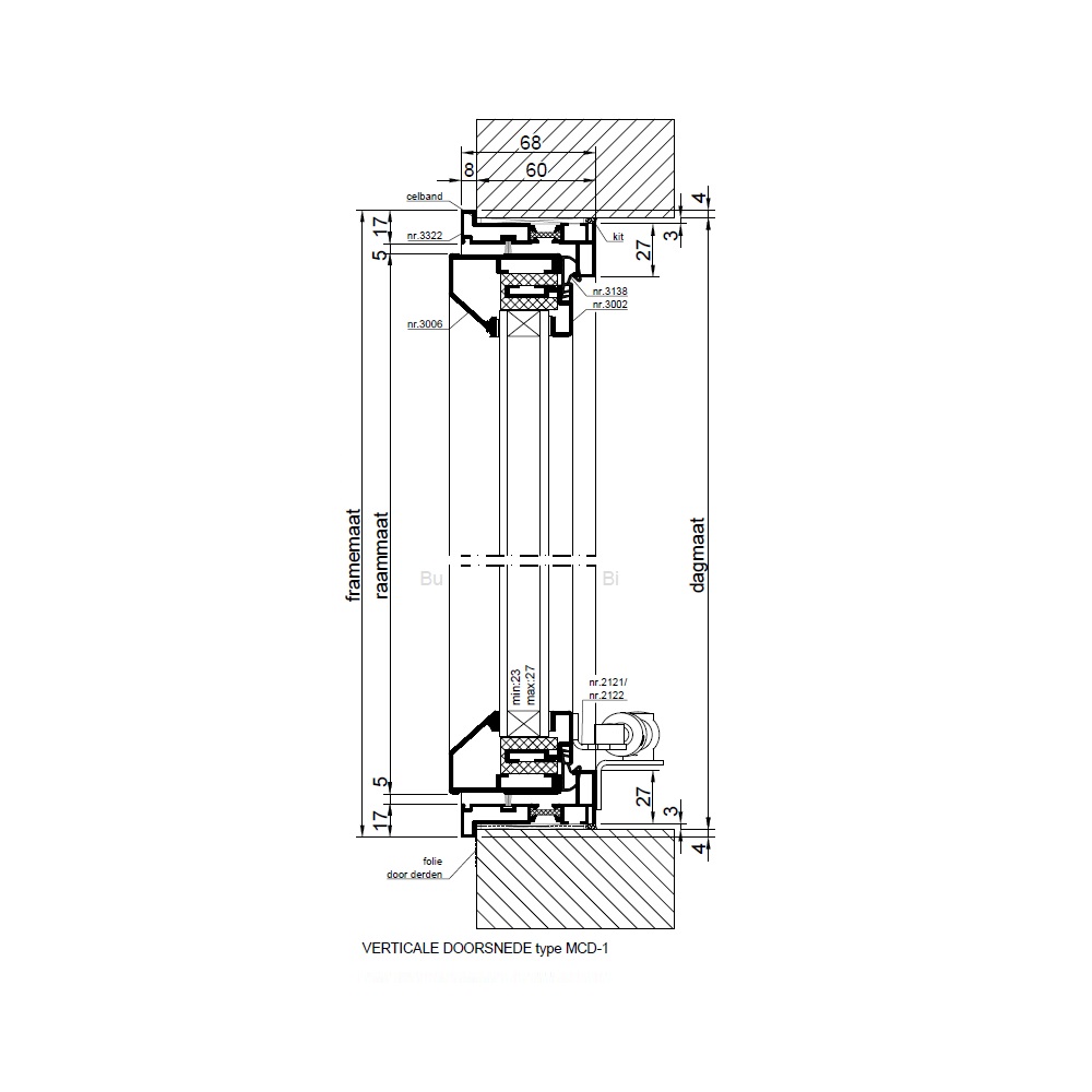
Methermo Classic inbraakwerend draairaam, type MCD met een geïsoleerd aluminium kozijn.

Methermo Classic draairamen zijn er in verschillende uitvoeringen, onderstaande weergave is van type MCD-1.

  • HR++ isolatieglas, glasdikte maximaal 27 mm
  • geïsoleerd aluminium raamprofiel
  • geïsoleerd kozijn rondom van aluminium profiel
  • rvs scharnieren
  • espagnoletprofiel met meerpuntssluiting
  • rvs handgreep
  • rvs slotmechaniek
  • telescoopuitzetter
  • afdichtingsrubber

Bekijk alle varianten en technische details in de documentatie.

MCD-1
Draairaam classic serie

Methermo Classic naar buiten draaiende ramen zijn modulair te combineren zodat vrijwel iedere gewenste gevelindeling kan worden gerealiseerd. Bij de toepassing van meerdere glaspanelen verandert het typenummer van de MCD-1 naar MCD-2, zie samenstellingsoverzicht in de technische documentatie.

Metaglas denkt graag met u mee. Heeft u vragen over de vele mogelijkheden van de Methermo Classic naar buiten draaiende ramen of wilt u advies over de mogelijkheden voor uw project? Neem dan contact met ons op. Wij helpen u graag verder.

Laat een bericht achter
Kom in contact!