Loading...
Methermo Classic Naar buiten draaiende ramen

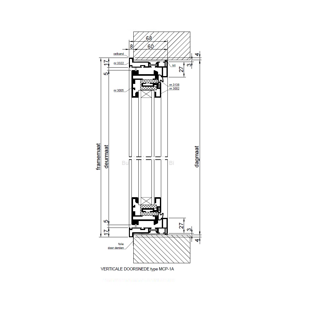
MCP

Methermo Classic inbraakwerend naar buiten draaiende deur, type MCP met een geïsoleerd aluminium kozijn.

Methermo Classic deuren zijn er in verschillende uitvoeringen, onderstaande weergave is van type MCP-1A.

  • tweezijdig gelaagd HR++ isolatieglas, glasdikte maximaal 30 mm
  • geïsoleerd aluminium raamprofiel
  • geïsoleerd kozijn rondom van aluminium profiel
  • rvs kogelgelagerde scharnieren
  • rvs meerpuntssluiting
  • rvs doorlopende slotkap
  • rvs deurkruk aan de binnen- en buitenzijde
  • rvs smalschild
  • euro (nood-)profielcilinder 35/35
  • afdichtingsrubber

Bekijk alle varianten en technische details in de documentatie.

MCP-1A
Deur classic serie met buitenzijde kruk, meerpuntsslot
MCP-1B
Deur classic serie met buitenzijde knop, meerpuntslot

Methermo Classic naar buiten draaiende ramen zijn modulair te combineren zodat vrijwel iedere gewenste gevelindeling kan worden gerealiseerd. Bij de toepassing van meerdere glaspanelen verandert het typenummer van de MCP-V naar MCP-2, zie samenstellingsoverzicht in de technische documentatie.

Metaglas denkt graag met u mee. Heeft u vragen over de vele mogelijkheden van de Methermo Classic naar buiten draaiende deuren of wilt u advies over de mogelijkheden voor uw project? Neem dan contact met ons op. Wij helpen u graag verder.

Laat een bericht achter
Kom in contact!