Loading...
Methermo Classic Naar buiten draaiende ramen

MCS

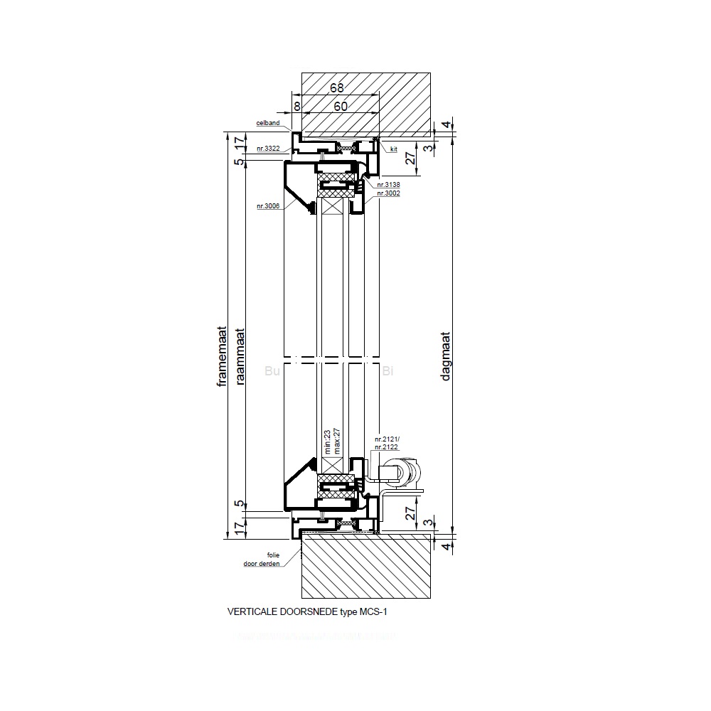
Methermo Classic inbraakwerend stolpraam, type MCS met een geïsoleerd aluminium kozijn.

Methermo Classic stolprame zijn er in verschillende uitvoeringen, onderstaande weergave is van type MCS-1.

  • HR++ isolatieglas, glasdikte maximaal 27 mm
  • geïsoleerd aluminium raamprofiel
  • geïsoleerd kozijn rondom van aluminium
  • espagnoletprofiel met meerpuntssluiting
  • rvs scharnieren
  • rvs handgreep
  • rvs slotmechaniek
  • telescoopuitzetters
  • afdichtingsrubber

Bekijk alle varianten en technische details in de documentatie.

MCS-1
Stolpraam classic serie

Methermo Classic naar buiten draaiende ramen zijn modulair te combineren zodat vrijwel iedere gewenste gevelindeling kan worden gerealiseerd. Bij de toepassing van meerdere glaspanelen verandert het typenummer van de MCS-1 naar MCS-2, zie samenstellingsoverzicht in de technische documentatie.

Metaglas denkt graag met u mee. Heeft u vragen over de vele mogelijkheden van de Methermo Classic naar buiten draaiende stolpramen of wilt u advies over de mogelijkheden voor uw project? Neem dan contact met ons op. Wij helpen u graag verder.

Laat een bericht achter
Kom in contact!