Loading...
Methermo Classic Naar buiten draaiende ramen

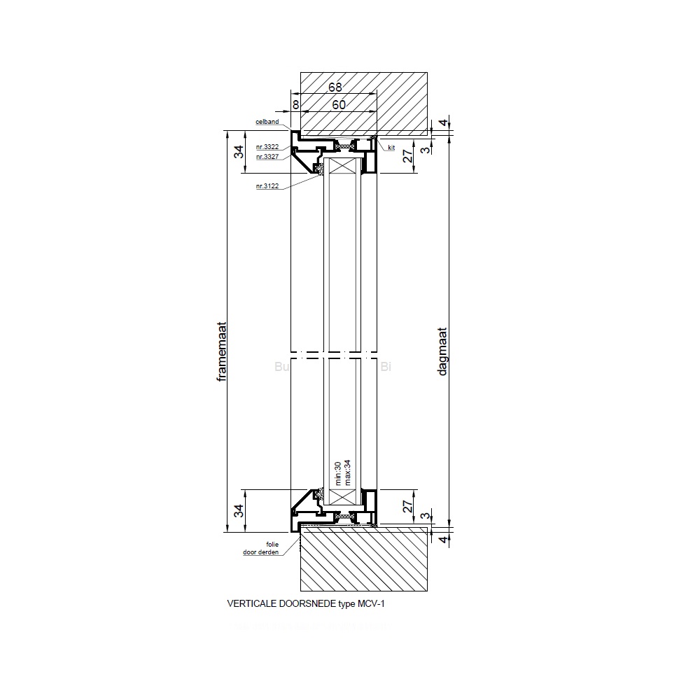
MCV

Methermo Classic vast raam, type MCV met een geïsoleerd aluminium kozijn.

Methermo Classic vaste ramen zijn er in verschillende uitvoeringen, onderstaande weergave is van type MCV-1.

  • HR++ isolatieglas, glasdikte maximaal 34 mm
  • geïsoleerd kozijn rondom van aluminium
  • dichtingsprofiel

Bekijk alle varianten en technische details in de documentatie.

MCV-1
Vastraam

Methermo Classic naar buiten draaiende ramen zijn modulair te combineren zodat vrijwel iedere gewenste gevelindeling kan worden gerealiseerd. Bij de toepassing van meerdere glaspanelen verandert het typenummer van de MCV-1 naar MCV-2, zie samenstellingsoverzicht in de technische documentatie.

Metaglas denkt graag met u mee. Heeft u vragen over de vele mogelijkheden van de Methermo Classic naar buiten draaiende ramen of wilt u advies over de mogelijkheden voor uw project? Neem dan contact met ons op. Wij helpen u graag verder.

Laat een bericht achter
Kom in contact!