Loading...
Methermo Original Schuifpuien / ramen (horizontaal)

MHS

Methermo Original horizontaal schuifsysteem, type MHS.

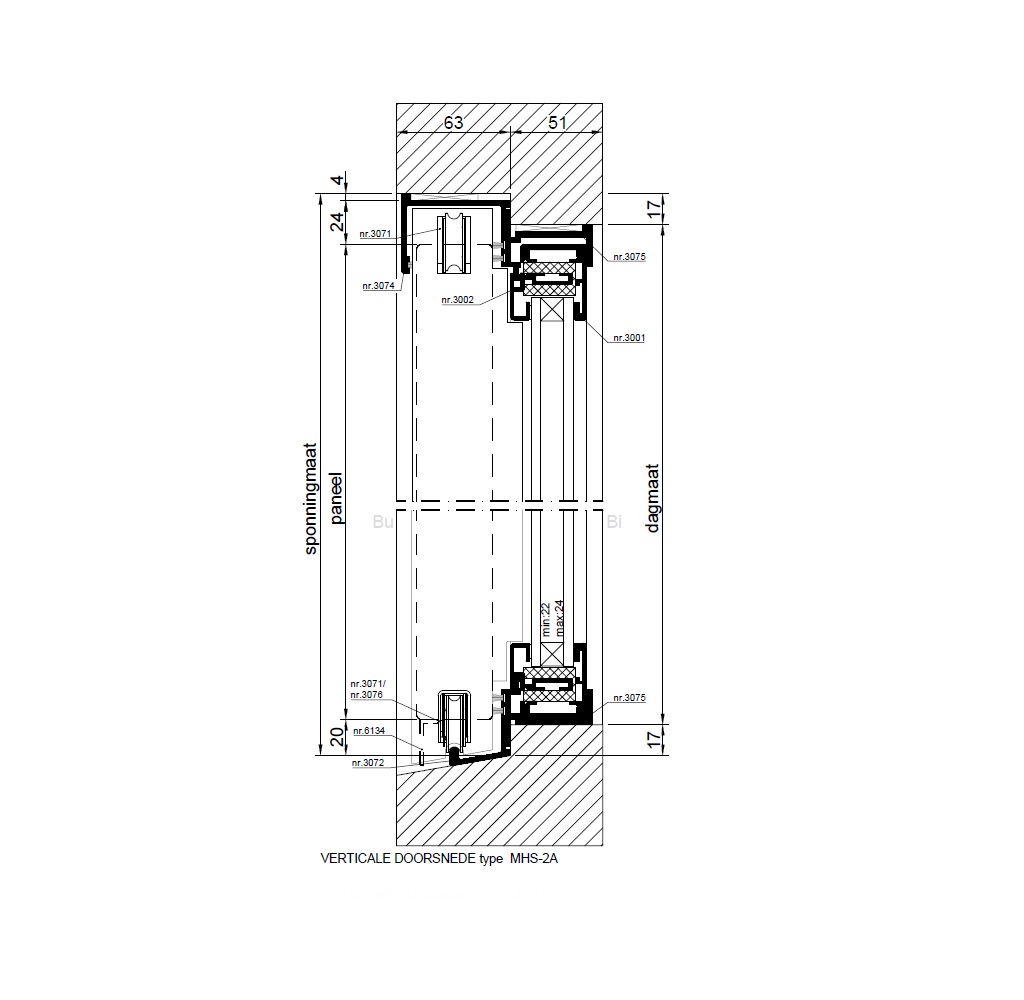
Methermo Original schuiframen zijn er in verschillende uitvoeringen, onderstaande weergave is van type MHS-2A.

  • HR++ isolatieglas, glasdikte maximaal 21 mm
  • geïsoleerd aluminium raamprofiel
  • bovenrail nr. 3074 en nr. 3075 inclusief dichtingen
  • onderrail nr. 3072 (naturel) en nr. 3075 met
    blokkeringsprofiel nr. 6325
  • looprollen nr. 3071 of nr. 3076
  • middennaad afdichtingsklauw nr. 3083 met
    middennaad vergrendeling nr. 3084
  • raamgreepcombinatie nr. 3143 en nr. 8464
  • espagnoletprofiel nr. 4120 en nr. 4122
  • afdichtingsprofiel nr. 3077
  • afsluitprofiel nr. 6134
  • borstelprofielen

Bekijk alle varianten en technische details in de documentatie.

MHS-2A
Schuifpui enkelzijdige bediening, 1 vast en 1 schuif
MHS-2D
Schuifpui enkelzijdige bediening, 1 vast en 2 schuif
MHS-2E
Schuifpui enkelzijdige bediening, 2 vast en 2 schuif
MHS-6A
Schuifpui dubbelzijdige bediening, 1 vast en 1 schuif
MHS-6D
Schuifpui dubbelzijdige bediening, 1 vast en 2 schuif
MHS-6E
Schuifpui dubbelzijdige bediening, 2 vast en 2 schuif

Methermo Original schuifpuien zijn er in diverse uitvoeringen waarbij de schuifpanelen leidend zijn voor het typenummer. Hieronder een overzicht van de schuifrichtingen met de bijbehorende typenummer.

Metaglas denkt graag met u mee. Heeft u vragen over de vele mogelijkheden van de Methermo Original horizontaal schuivende ramen en puien of wilt u advies over de mogelijkheden voor uw project? Neem dan contact met ons op. Wij helpen u graag verder.

Laat een bericht achter
Kom in contact!