Loading...
Methermo Original Stolpramen / stolpdeuren

MSI

Methermo Original naar binnen draaiend stolpraam, type MSI.

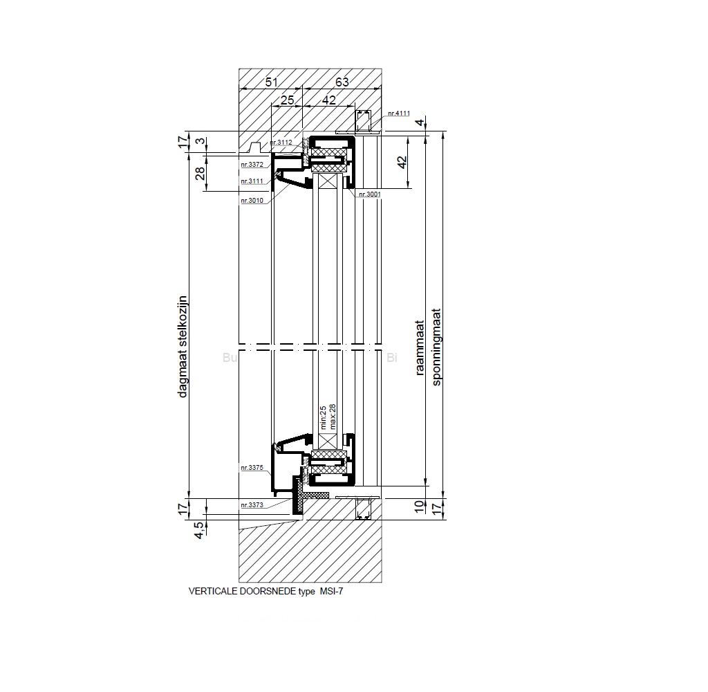
Methermo Original stolpramen zijn er in verschillende uitvoeringen, onderstaande weergave is van type MSI-7.

  • HR++ isolatieglas, glasdikte maximaal 27 mm
  • geïsoleerd aluminium raamprofiel
  • rvs scharnieren nr. 1037
  • afdekprofiel nr. 3025
  • espagnoletprofiel nr. 4123 met geïntegreerde
    meerpuntsvergrendeling
  • rvs handgreep nr. 8464
  • rvs slotmechaniek nr. 3143
  • kantschuif nr. 4139
  • ontwateringsframe van profiel
    nr. 3371, nr. 3372, nr. 3373 en nr. 3375
  • afdichtingsrubber nr. 3107, nr. 3111 en nr. 3112

Bekijk alle varianten en technische details in de documentatie.

MSI-7
Stolpraam, glasdikte tot 28 mm
MSI-32
Stolpraam, glasdikte tot 39 mm (brandwerend)
MSI-34
Stolpraam, glasdikte tot 39 mm
MSI-35
Stolpraam, glasdikte tot 45 mm

Metaglas denkt graag met u mee. Heeft u vragen over de vele mogelijkheden van de Methermo Original naar binnen draaiende stolpramen of wilt u advies over de mogelijkheden voor uw project? Neem dan contact met ons op. Wij helpen u graag verder.

Laat een bericht achter
Kom in contact!