Loading...
Methermo Original Stolpramen / stolpdeuren

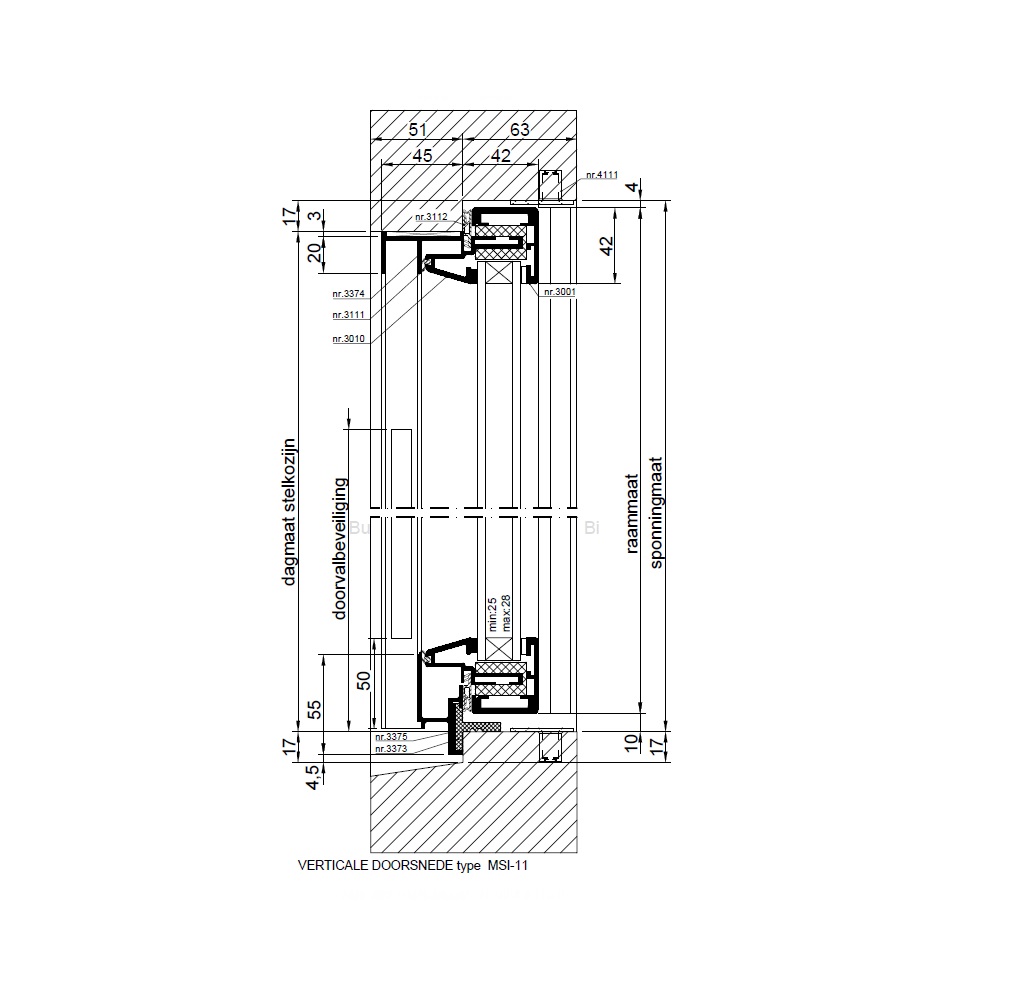
MSI met doorvalbeveiliging

Methermo Original naar binnen draaiend stolpraam, type MSI met een geïntegreerde glazen doorvalbeveiliging.

Methermo Original draairamen zijn er in verschillende uitvoeringen, onderstaande weergave is van type MSI-11.

  • enkel gelaagd HR++ isolatieglas, glasdikte maximaal 27 mm
  • geïsoleerd aluminium raamprofiel - rvs scharnieren nr. 1037
  • afdekprofiel nr. 3025
  • espagnoletprofiel nr. 4123 met geïntegreerde
  • meerpuntsvergrendeling
  • rvs handgreep nr. 8464
  • rvs slotmechaniek nr. 3143
  • kantschuif nr. 4139
  • ontwateringsframe met opname voor geïntegreerde doorvalbeveiliging van profiel
    nr. 3373, nr. 3374 en nr. 3375
  • doorvalbeveiligingspaneel van gelaagd glas
  • afdichtingsrubber nr. 3107, nr. 3111 en nr. 3112

Bekijk alle varianten en technische details in de documentatie.

MSI-11
Stolpraam, glasdikte tot 28 mm met doorvalbeveiliging
MSI-33
Stolpraam, glasdikte tot 39 mm met doorvalbeveiliging (brandwerend)
MSI-36
Stolpraam, glasdikte tot 39 mm met doorvalbeveiliging
MSI-37
Stolpraam, glasdikte tot 45 mm met doorvalbeveiliging

Metaglas denkt graag met u mee. Heeft u vragen over de vele mogelijkheden van de Methermo Original naar binnen draaiende stolpramen met doorvalbeveiliging of wilt u advies over de mogelijkheden voor uw project? Neem dan contact met ons op. Wij helpen u graag verder.

Laat een bericht achter
Kom in contact!