Loading...
Methermo XL Naar binnen draaiende ramen & deuren

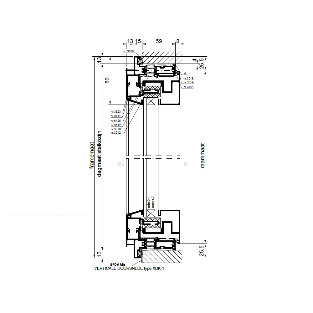
XDK

MethermoXL inbraakwerend draai-kiepraam, type XDK met een geïsoleerd aluminium kozijn.

Methermo XL draaikiepramen zijn er in verschillende uitvoeringen, onderstaande weergave is van type XDK-1.

  • HR++ isolatieglas, glasdikte maximaal 47 mm
  • geïsoleerd aluminium raamprofiel
  • geïsoleerd kozijn rondom van aluminium profiel
  • draai-kiepbeslag
  • rvs slotmechaniek
  • rvs handgreep
  • afdichtingsrubbers

Bekijk alle varianten en technische details in de documentatie.

XDK-1
Draaikiepraam
XDK-3
Draaikiepraam met doorvalbeveiliging

Methermo XL naar binnen draaiende ramen en deuren zijn modulair te combineren zodat vrijwel iedere gewenste gevelindeling kan worden gerealiseerd. Bij de toepassing van meerdere glaspanelen verandert het typenummer van de XDK-1 naar XDK-2, zie samenstellingsoverzicht in de technische documentatie.

Metaglas denkt graag met u mee. Heeft u vragen over de vele mogelijkheden van de Methermo XL naar binnen draaiende draaikiepramen of wilt u advies over de mogelijkheden voor uw project? Neem dan contact met ons op. Wij helpen u graag verder.

Laat een bericht achter
Kom in contact!