Loading...
Methermo XL Verticale schuiframen

XEVS

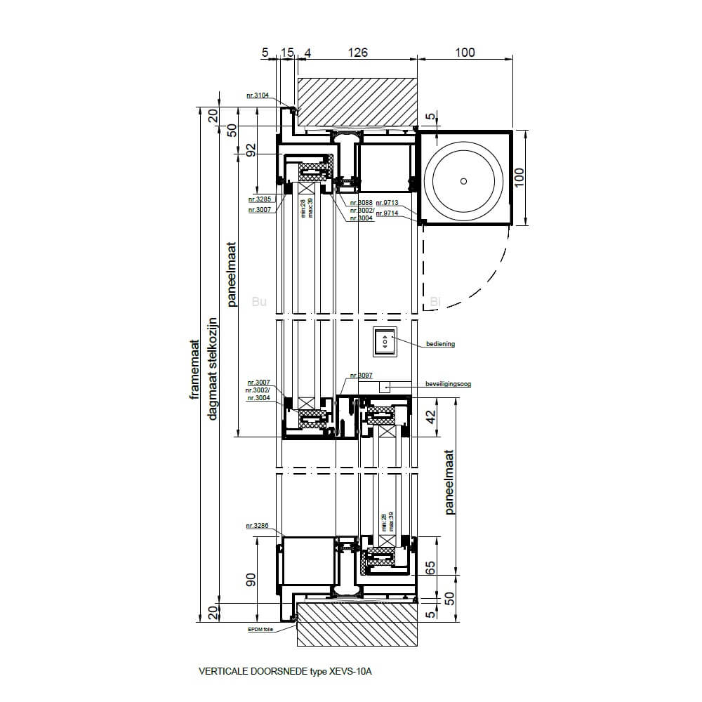
Methermo XL verticaal schuivend raam, elektrisch bediend, type XEVS.

Methermo XL verticale schuiframen zijn er in verschillende uitvoeringen, onderstaande weergave is van type XEVS-10A.

  • HR++ isolatieglas, glasdikte maximaal 45 mm
  • geïsoleerd raamprofiel afhankelijk van glasdikte
  • kozijn van profiel nr. 3285 rondom met afdichting nr. 3286
  • Mfix circulair bevestigingssysteem
  • dichtingsprofiel nr. 3088 rondom
  • afdichtingsrubber nr. 3116
  • aanslagrubber nr. 3180
  • afdichtingsklauw middennaad nr. 3097
  • koof t.b.v. buismotor nr. 9770 en nr. 9771
  • buis met buismotor nr. 6413
  • voedingskabel met stekker 230V nr. 9703
  • dichtingsprofielen nr. 3286
  • bedieningsschakelaar rechts (dodemansknop)
  • infra rood beveiligingsoog

Bekijk alle varianten en technische details in de documentatie.

XEVS-10A
Verticaal schuifraam, bovenpaneel schuift naar beneden
XEVS-10B
Verticaal schuifraam, onderpaneel schuift naar boven
XEVS-10D
Verticaal schuifraam, middenpaneel schuift naar beneden
XEVS-10AXL
Verticaal schuifraam, bovenpaneel schuift naar beneden
XEVS-10BXL
Verticaal schuifraam, onderpaneel schuift naar boven
XEVS-11D
Verticaal schuifraam, bovenpaneel schuift naar beneden, met schoonmaakfunctie

MethermoXL naar schuiframen (verticaal) zijn modulair te combineren zodat vrijwel iedere gewenste gevelindeling kan worden gerealiseerd. Iedere letter aan het einde van de codering staat voor een andere schuifpui indeling, zie alle samenstellingsoverzicht in de technische documentatie.

Metaglas denkt graag met u mee. Heeft u vragen over de vele mogelijkheden van de Methermo XL verticaal schuivende ramen of wilt u advies over de mogelijkheden voor uw project? Neem dan contact met ons op. Wij helpen u graag verder.

Laat een bericht achter
Kom in contact!