Loading...
Methermo Original Draai-kiepramen

MDK

Methermo Original inbraakwerend draaikiepraam, type MDK.

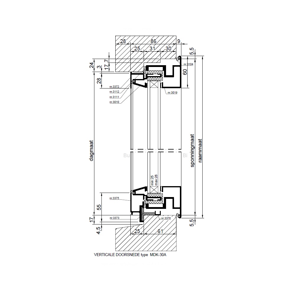
Methermo Original draaikiepramen zijn er in verschillende uitvoeringen, onderstaande weergave is van type MDK-30A.

  •  HR++ isolatieglas, glasdikte maximaal 28 mm
  • geïsoleerd aluminium raamprofiel
  • draai-kiepbeslag nr. 3135
  • rvs handgreep nr. 8464
  • rvs slotmechaniek nr. 3143
  • U-profiel nr. 3376
  • ontwateringsframe van profiel nr. 3371,
    nr. 3372, nr. 3373 en nr. 3375
  • afdichtingsrubbers nr. 3104, nr. 3111 en nr. 3112

Bekijk alle varianten en technische details in de documentatie.

MDK-30
Draaikiepraam, glasdikte tot 28 mm
MDK-31
Draaikiepraam, glasdikte tot 34 mm
MDK-32
Draaikiepraam, glasdikte tot 44 mm
MDK-33
Draaikiepraam, glasdikte tot 50 mm

Metaglas denkt graag met u mee. Heeft u vragen over de vele mogelijkheden van de Methermo Original naar binnen draaiende draaikiepramen of wilt u advies over de mogelijkheden voor uw project? Neem dan contact met ons op. Wij helpen u graag verder.

Laat een bericht achter
Kom in contact!