Loading...
Methermo XL Schuifpuien / ramen (horizontaal)

XHS

Methermo XL horizontaal schuifsysteem, type XHS met een geïsoleerd aluminium kozijn.

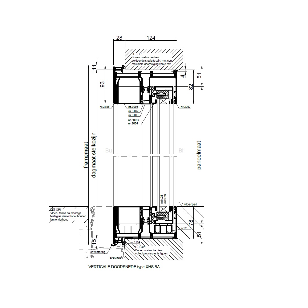
Methermo XL schuiframen en puien zijn er in verschillende uitvoeringen, onderstaande weergave is van type XHS-9A.

  • HR++ isolatieglas, glasdikte maximaal 39 mm
  • geïsoleerd aluminium raam
  • geïsoleerd kozijn van aluminium profiel
  • loopwiel profiel met loopwielen
  • aanslagrubber 
  • middennaad afdichtingsklauw met geïntegreerde vergrendeling
  • borstelprofielen
  • handgreep
  • afdichtingsrubber
  • dichtingsprofiel rondom
  • ontwateringsgoot (optioneel)

Bekijk alle varianten en technische details in de documentatie.

XHS-9A
Schuifpui 2-spoor, 1 vast en 1 schuif, eenzijdig bediend, inbouw mogelijk
XHS-9C
Schuifpui 2-spoor, 2 vast en 1 schuif, eenzijdig bediend, inbouw mogelijk
XHS-9D
Schuifpui 2-spoor, 1 vast en 2 schuif, eenzijdig bediend, inbouw mogelijk
XHS-9E
Schuifpui 2-spoor, 2 vast en 2 schuif, eenzijdig bediend, inbouw mogelijk
XHS-10A
Schuifpui 2-spoor, 1 vast en 1 schuif, tweezijdig bediend
XHS-10D
Schuifpui 2-spoor, 1 vast en 2 schuif, tweezijdig bediend
XHS-10E
Schuifpui 2-spoor, 2 vast en 2 schuif, tweezijdig bediend
XHS-17A
Schuifpui 2-spoor, 1 vast en 1 schuif, eenzijdig bediend
XHS-17C
Schuifpui 2-spoor, 2 vast en 1 schuif, eenzijdig bediend
XHS-17D
Schuifpui 2-spoor, 1 vast en 2 schuif, eenzijdig bediend
XHS-17E
Schuifpui 2-spoor, 2 vast en 2 schuif, eenzijdig bediend
XHS-25A
Schuifpui 2-spoor, 1 vast en 2 schuif, eenzijdig bediend
XHS-25E
Schuifpui 2 spoort, 2 vast en 2 schuif, eenzijdig bediend
XHS-35A
Schuifpui 3-spoor, 1 vast en 2 schuif, eenzijdig bediend
XHS-35E
Schuifpui 3-spoor, 2 vast en 4 schuif, eenzijdig bediend

Methermo XL naar schuifpuien / ramen zijn modulair te combineren zodat vrijwel iedere gewenste gevelindeling kan worden gerealiseerd. Iedere letter aan het einde van de codering staat voor een andere schuifpui indeling, zie alle samenstellingsoverzicht in de technische documentatie.

Metaglas denkt graag met u mee. Heeft u vragen over de vele mogelijkheden van de Methermo XL schuiframen en schuifpuien of wilt u advies over de mogelijkheden voor uw project? Neem dan contact met ons op. Wij helpen u graag verder.

Laat een bericht achter
Kom in contact!